Исполнительная документация

Исполнительная документация оформляется в процессе возведения сооружений, проведения капитального ремонта и других видов строительных работ. Она используется для сдачи объекта в эксплуатацию и для его дальнейшего обслуживания. Компания ООО «Спецтехзащита» предлагает услуги по разработке исполнительной документации.

 

Мы оформим для вас следующие виды документов:

 

• Акты.
• Схемы.
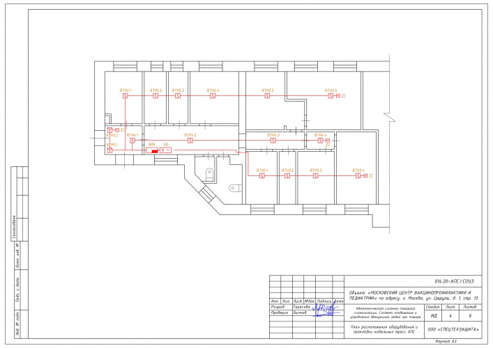
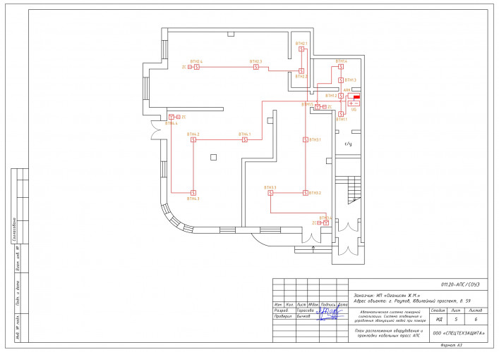
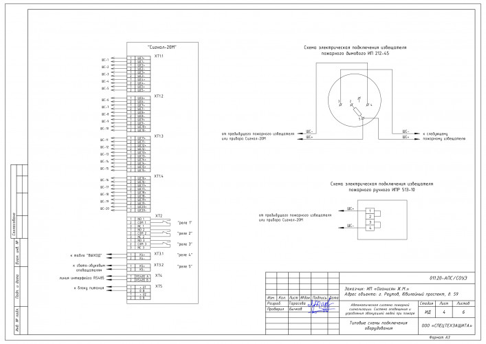
• Планы.
• Спецификации.
• Протоколы.
• Паспорта.
• Сертификаты.
• Ведомости.
• Журналы.

 

Все технические материалы тщательно прорабатываются. При формировании пакета документации мы готовы оказать инженерную поддержку. Наши специалисты ответят на вопросы, проведут проверку исполнения требований. Мы оперативно внесем правки, если это будет необходимо.

 

Стоимость исполнительной документации зависит от срочности разработки, качества исходных данных, количества работ и других факторов.

 

Наши специалисты имеют профильное образование и большой опыт работы. Вы можете обратиться к нам на этапе планирования или в ходе строительства. Накопленный опыт и знания позволяют нам быстро собрать пакет документов при возведении различных объектов. Все заказы выполняются точно в срок.

 

Комплексные системы безопасности в Москве

Исполнительная документация, проектирование от 3500 р.

Условия заказа, цену работ, сроки выполнения,

а так же информацию о сезонных акциях и скидках можете узнать ,

позвонив по номеру телефона 84992619700 +7 (926) 303-11-95

Так же можете связаться с нами по WhatsApp 

или по электронной почте: STZ_kostiya@bk.ru

Ваш браузер устарел рекомендуем обновить его до последней версии
или использовать другой более современный.